Se rendre au contenu

Bientôt un nouvel HIS!

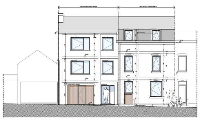
A Marche en Famenne, à proximité du centre ville.


En août 2024, la Fondation Portray a acquis 2 maisons unifamiliales pour y créer 6 logements individuels et un espace communautaire. 

Ce nouvel Habitat Inclusif Solidaire pourra accueillir 6 à 8 personnes en situation de handicap et un volontaire de l'asbl Compagnons Bâtisseurs. Ce projet est co-construit avec les familles, le service d'accompagnement Andage asbl et l'AIS Nord-Luxembourg.

Les travaux vont bientôt démarrer et nous espérons ouvrir la maison fin 2026.

Notre processus en quatre étapes

1

Achat du bâtiment et récolte des fonds

Auprès des familles, des organisations solidaires et des pouvoirs publics (dons ou prêts à 0%).

2

Groupe de travail

Les futurs habitants se réunissent pour réfléchir au projet et se préparer à la vie en autonomie.

3

Partenariats

Avec le service d'accompagnement Andage asbl et l'AIS Nord-Luxembourg.

4​

Travaux

Créer 6 logements individuels et un espace communautaire.

 Nous avons encore besoin de dons ​solidaires pour couvrir les coûts de supervision et pérenniser ce projet de logement innovant et qualitatif. Faites un don sur notre compte BE60 0682 4119 4870 avec en communication "HIS Marche - Numéro National".